BATIMENT MIXTE - EN COURS

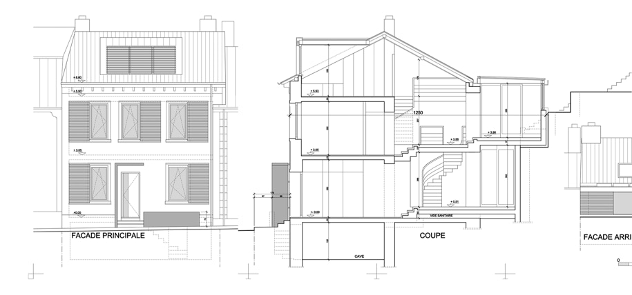
RENOVATION ET AGRANDISSEMENT D’UNE MAISON - 2007

CLIENT : PRIVE

LIEU : LUXEMBOURG

SURFACE : 200 m2

ROLE : MISSION COMPLETE

Christine Mormont-Berbec’

c.mormont@atelier618.lu

Achim Thon

a.thon@atelier618.lu

3, rue Emile Lavandier     L-1924  Luxembourg

T: +352 26 25 98 30     M: info@atelier618.lu